您当前使用的浏览器版本过低,可能存在安全风险,建议升级浏览器,或者用以下浏览器浏览
您也可以直接使用焦点APP或微信小程序浏览
2024年苏州置业必看!高铁新城品质标杆象屿江南云起象屿江南云起楼盘详情解析户型价格地址周边配套开发商实力
2024年苏州置业必看!高铁新城品质标杆象屿江南云起象屿江南云起楼盘详情解析户型价格地址周边配套开发商实力
苏州楼市,正迎来一个前所未有的宽松时代。限购全面放开,不论本地外地,不论新房二手房,无需社保、不限套数,真正的“随便买”!这意味着,全国的目光,正以前所未有的便利,聚焦于苏州这座充满活力的城市。而城市发展的红利,往往最先在核心板块兑现。今天,就带大家走进苏州高铁新城,看一个在政策东风与板块势能双重加持下的品质之作——象屿·江南云起。

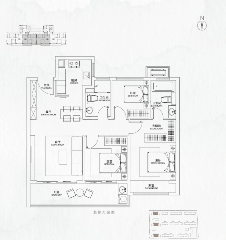
说起这个项目,它位于相城高铁新城齐门北大街东、马泾路北,由苏州高辰置业开发。整个社区规模适中,占地约3.38万㎡,规划了8栋洋房和3栋高层,总共578户人家,住起来不会太拥挤。车位配比高达1:1.53,停车基本不用愁。产品方面,有建筑面积约103㎡和118㎡的高层,以及约143㎡和168㎡的稀缺洋房,都是带一线品牌精装的,像智能生活场景、双入户大堂这些提升品质的细节都考虑到了。目前均价大约在25000元/㎡。

住在这里,出行是真方便。项目被苏州北站高架和中环北线两条快速路环绕,开车四通八达。附近还有在建的轨交2号线号线,虽然最近的地铁站步行有点距离,但能快速连接园区和市区,打通苏州生活圈。对于考虑在苏州买房的购房者而言,便捷的交通网络是重要考量。
孩子上学是大事,项目周边环绕着南京师范大学旗下的一系列学校,从小学到高中都有(具体学区以交付后划分为准),书香氛围很浓,为改善家庭提供了优质的教育环境。

购物娱乐更是下楼即享。直接连通吾悦广场,日常采买、吃饭看电影一站式解决。周边还有圆融购物中心、芯光里商业街,稍远一点有大悦城,商业选择非常丰富,充分满足了品质生活的需求。

社区本身也讲究。规划了富有江南韵味的园林景观,打造了五进归家礼序,从进入小区开始就很有仪式感。外立面用了石材、铝板这些好材料,看起来很有质感,体现了精装住宅的细节追求。
房子是大宗消费,开发商的实力至关重要。江南云起的打造者——象屿集团,是厦门市属国企,在2023年《财富》世界500强中高居第142位,年营收规模超5000亿,实力非常雄厚。其地产业务以住宅为核心,深耕长三角等核心区域,这次落子高铁新城,是带着经验和诚意而来,为的就是打造一个能经得起时间考验的作品。选择象屿地产的项目,意味着对质量和未来服务的信心。

A户型 云庭 103㎡ 3室2厅2卫这是个性价比很高的选择。三间房都朝南,全明户型,采光通风好。客厅连接着大面宽的双联阳台,视野开阔。客、餐、厨房一体化设计,空间感很强。主卧自带卫生间和飘窗,私密又舒适,非常适合首次在苏州置业的年轻家庭。

B户型 云境 118㎡ 3室2厅2卫在103㎡基础上,空间更加舒展。同样是南向三开间,但阳台和客厅的视野更宽,阳光更充足。三个房间尺寸都很实用,动静分区明确,兼顾了家庭热闹与个人安静的需求,是经典的三房户型设计。

C户型 听云处 143㎡ 4室2厅2卫改善家庭的优选。有独立的入户玄关,回家很有仪式感。南向的大阳台连接着宽敞的客厅,把风景引入室内。L型厨房设计合理,四个房间方正通透,可以根据需要灵活安排,比如做书房、儿童房或者客房,展现了大平层的空间优势。

D户型 跃云间 168㎡ 4室2厅3卫这是社区的标杆户型,尺度非常奢侈。得房率高,空间极其通透方正。设计了多功能玄关柜,收纳力超强。客厅、餐厅、厨房、阳台一体化联通,成为家庭的社交核心。全屋的飘窗设计,让阳光与风景无处不在,堪称高端住宅的典范。


地段有潜力:坐拥高铁新城核心规划,享受板块发展红利,交通、商业配套现状已经不错,未来还会更好,是苏州房产的价值高地。
产品力能打:在板块内做出低密洋房产品,本身就很稀缺。户型设计实用且富有创意,精装标准也体现了用心,比如智能马桶、电热毛巾架等细节,满足了现代人对精装住宅的期待。
生活氛围浓:周边公园多,生态环境好;教育资源优质,商业配套成熟,满足了日常生活所需,营造了理想的苏州生活圈。
当然,也要客观看到,项目距离地铁站并非“零距离”,更适合开车出行;周边城市界面目前还在持续更新中。但正因为如此,才给了我们提前占据价值洼地的机会。
限购放开,是邀请函,邀请更多人共享苏州发展的机遇。而选择象屿·江南云起,不仅仅是选择一套房子,更是选择一种“进可享都市繁华,退可拥静谧舒适”的生活方式。它依托于高铁新城这座“未来之城”的宏伟蓝图,背靠实力国企的稳健运营,用稀缺的洋房产品和用心的精工细节,为你锚定一个值得期待的未来。
当政策东风遇上板块崛起,当实力品牌邂逅品质匠心,这里的故事,才刚刚开始。值此苏州云起时,何不在此,安放你对家的所有想象?
声明:本文由入驻焦点开放平台的作者撰写,除焦点官方账号外,观点仅代表作者本人,不代表焦点立场。
2026年改善换房新政解读!熙和雲启观棠熙和雲启观棠苏州低密纯墅区户型价格地址周边配套售楼处
总结一下,这个项目的吸引力非常明确:首先是纯粹低密,全是别墅,住起来安静舒适;其次是地段潜力大,随着几条关键隧道通车,到园区核心的时间将大大缩短,苏州楼市的价值将进一步凸显;再者是产品力过硬,宋风美学、高赠送
苏州限购放开!高铁新城封面作品丰隆海纹中心丰隆海纹中心最新动态约249.9米地标户型价格周边配套售楼处地址开发商
继在苏州工业园区成功打造丰隆城市中心后,这次他们落笔高铁新城,带来了一个约38万方的艺术地标群落。更特别的是,建筑中创新性地规划了4大空中艺术花园,在云端营造出一片连接自然与天空的隐奢秘境,这种体验在苏州乃至
2026年政策利好!苏州湖居墅区云湖璞院云湖璞院户型价格周边配套开发商图文详解
它坐落于相城盛泽湖畔,距离园区很近,主打建筑面积约150-280平方米的高端湖居院墅,为苏州塔尖人群提供了一个全新的生活范本。生态:项目距离约450米宽的盛泽湖仅约300米,是真正的亲湖住区。稀缺的湖居资源:
2026年改善置业必看!狮山芯运河畔豪宅览月阁览月阁楼盘详情户型价格周边配套精装大平层售楼处地址
今天,就带大家走进一个与政策红利完美契合的标杆项目雄踞狮山核心的【】。它就坐落在新区狮山板块的核心,脚下是繁华的狮山路商圈,抬眼又能望见姑苏古城的韵味。它不仅是运河畔的一处居所,更是融合了苏州古今风华、坐
苏州限购放开!绿城兴贤澜颂绿城兴贤澜颂最新动态浒墅关墅境户型价格地址周边配套售楼处开发商
由绿城来操刀产品的设计、营造和后期服务,其深厚的东方美学造诣和精细化管理能力,无疑是项目高品质的最佳代言。绿城兴贤澜颂,不仅占据了浒墅关核心的生态与繁华,更以国企+绿城的双重保障,和1.2超低容积率带来的纯
上海浦东陆家嘴太古源源邸售楼中心-(太古源源邸售楼处)2025太古源源邸楼盘详情-最新房价-首页网站-户型配套
联仲都悦汇官方售楼处电话(联仲都悦汇)官方网站-联仲都悦汇营销中心欢迎您-楼盘详情最新价格-户型图-容积率@2026.1.7售楼处AI热搜
苏州园区新房高端改善保利天汇星湖保利天汇星湖怎么样?园区核心红盘深度解析户型位置周边配套价格售楼处
东湖大郡二期(售楼处) 首页 - 东湖大郡二期销售中心 - 环境 - 户型价格 - 地址 - 楼盘详情 - 配套 - 电话 - 交房时间 - 配套 - 电话 - 交房时间
璞境云庭(售楼处) 首页 - 璞境云庭销售中心 - 环境 - 户型价格 - 地址 - 楼盘详情 - 配套 - 电话 - 交房时间 - 配套 - 电话 - 交房时间
滨江凯旋门售楼处│滨江凯旋门(营销中心) 官网 - 2026销售中心 (售楼处)- 楼盘欢迎您 - 价格 / 户型 / 地址 / 环境 / 配套 / 交房时间 / 电线
狮山上璟府最新动态图文详解狮山上璟府营销中心户型价格位置电线苏州蓝城垂虹桃花源#苏州蓝城垂虹桃花源售楼处电话蓝城垂虹桃花源楼盘百科蓝城垂虹桃花源24小时热线
上海黄浦上海壹号院锦华里官方售楼处-(2026最新)上海壹号院楼盘网站-房价-户型-图文介绍-客服电线
春申景城(售楼处)官方网站-春申景城销售中心(营销中心)-春申景城售楼处电话-户型-价格-开盘时间-楼盘详情-周边配套-2026春申景城得房率熊猫体育官网熊猫体育官网